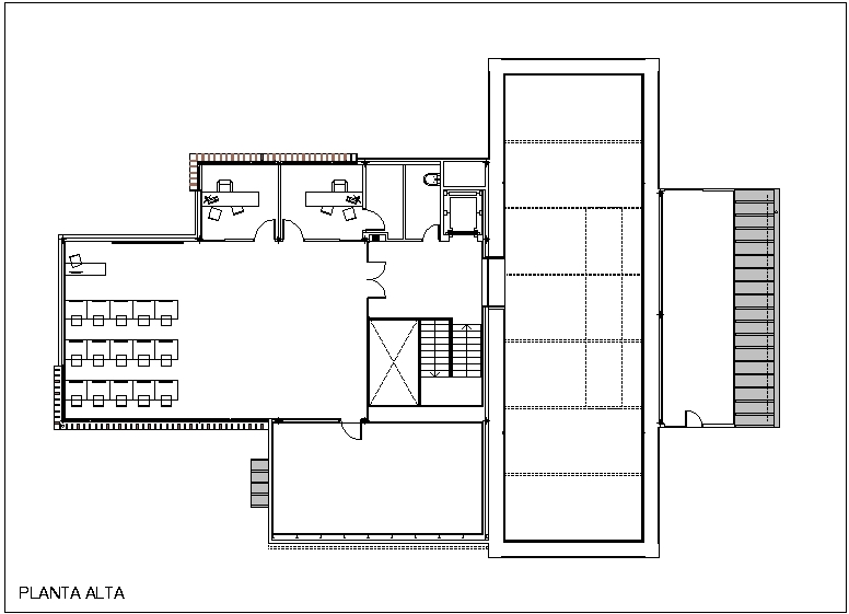
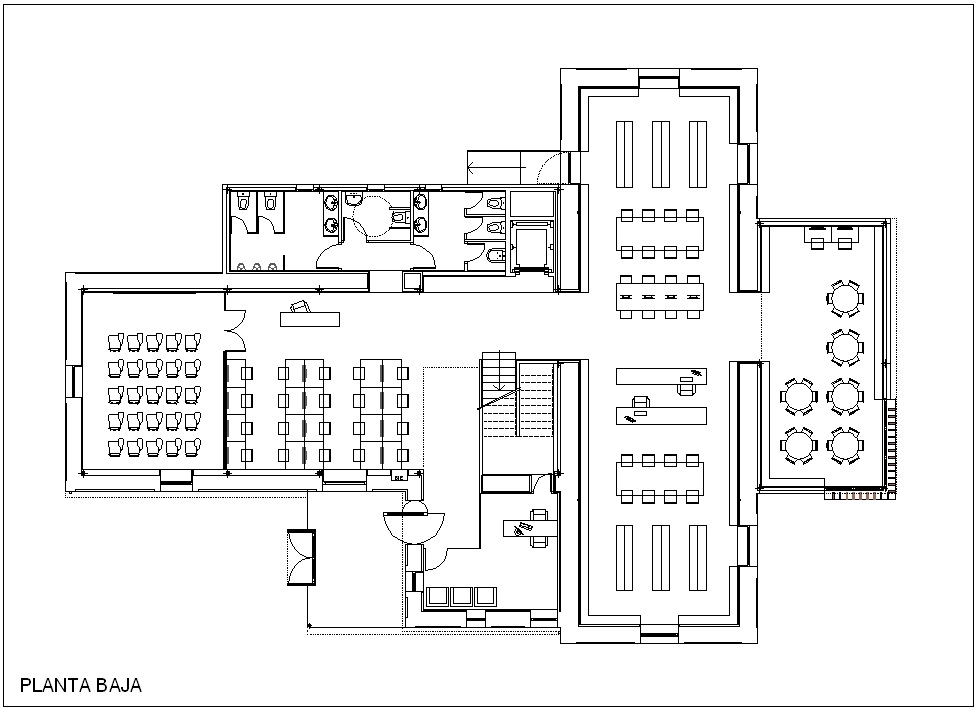
Biblioteca Municipal y Centro de Nuevas Tecnologías de Villa del Prado
La nueva Biblioteca Municipal y Centro de Nuevas Tecnologías parte de la ampliación, reforma y cambio de uso del antiguo matadero municipal que data de principios del siglo XX. Edificio protegido por Patrimonio Arquitectónico como ejemplo de la arquitectura industrial madrileña, por lo que la nave principal en su totalidad y los cerramientos del resto habían de ser conservados. La nave principal de doble altura y cubierta de madera vista se destina a Sala de Biblioteca, mientras que el resto de la planta baja y la planta alta ampliada a usos auxiliares y Nuevas Tecnologías. Se combina la utilización de materiales contemporáneos con tradicionales dentro de un lenguaje arquitectónico conservador.
Superficie construida 725 m2. Año de construcción 2010.
Proyecto de pabellón Polideportivo Municipal de Aldea del Fresno
Pabellón Polideportivo Municipal situado en parcela límite de casco urbano junto a entorno natural del Río Alberche, al que intenta adaptarse con la variedad cromática de la “piel” del volumen principal de mayor altura y tamaño donde se ubica la pista polideportiva y el graderío. Un volumen secundario en forma de “L”, en el que se sitúan los usos auxiliares, rodea al principal para adaptar la escala del edificio a la escala urbana. Fachada del volumen principal ventilada formada por paneles cerámicos de distintos colores.
Superficie construida 2.885 m2.
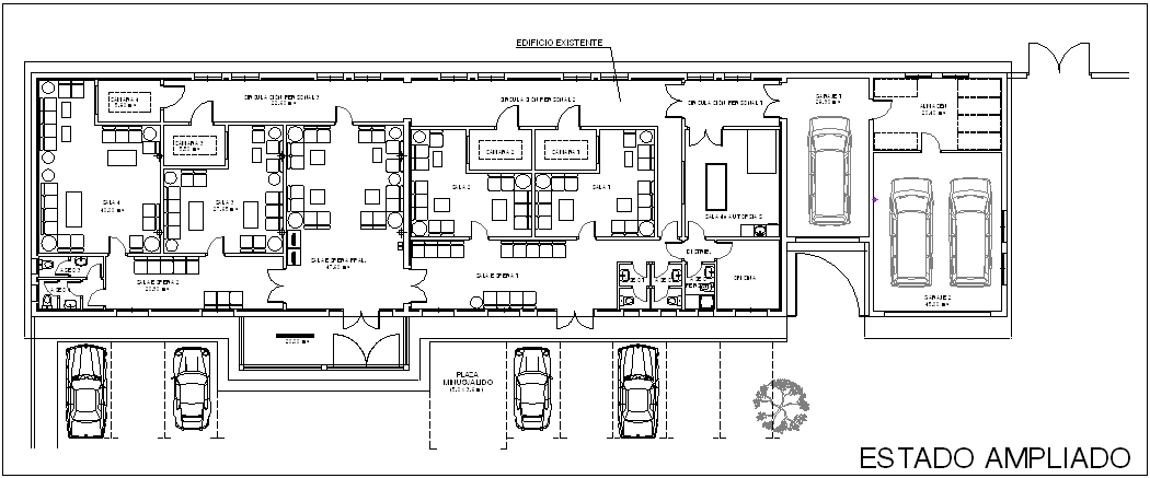
Ampliación del Tanatorio Municipal de Villa del Prado
La ampliación del Tanatorio sito en el Cementerio Municipal se produce por la insuficiencia de las dos salas-velatorio actuales con una sala de espera común. La ampliación consiste en la realización de dos nuevas salas, una sala de espera común para las dos nuevas salas, una sala de espera central de gran superficie y común para todo el edificio, un nuevo acceso principal a modo de porche cubierto y un nuevo garaje para dos vehículos y almacenaje. Se mantiene el mismo lenguaje arquitectónico y se unifica la estética de lo existente y lo ampliado.
Superficie construida global 530 m2.
Ampliación de la Biblioteca del Centro Cultural Municipal de Aldea del Fresno
La ampliación de la Biblioteca dentro del Centro Cultural Municipal se produce por la insuficiente superficie de la sala actual y el desuso de la terraza descubierta existente. La ampliación consiste en la cubrición y cerramiento de dicha terraza aprovechando la pérgola metálica decorativa existente como sustento estructural de la nueva cubierta de paneles de madera y zinc. Cerramiento acristalado caracterizado por la ejecución por el exterior de celosía de lamas abatibles de madera para el control de la luz solar. Se utiliza un lenguaje arquitectónico que respeta y mejora la estética general del edificio.
Superficie construida ampliación 50 m2. Año de construcción 2011.
Proyecto de reforma y acondicionamiento del Parque “La Noria” de Aldea del Fresno
El proyecto forma parte de la recuperación del entorno natural situado junto al río Perales en cuyo centro se sitúa la antigua Noria Árabe. Consiste en la recuperación de las zonas vegetales abandonadas en los últimos años y en el acondicionamiento para el descanso y disfrute de la zona central próxima al estanque de la noria.
Superficie de actuación 5.100 m2.
Pista polideportiva exterior en Campo de Fútbol Municipal de Aldea del Fresno
