Proyectamos su edificio de viviendas para promoción, cooperativa o particular, cumpliendo necesidades y requisitos, dando especial importancia a las necesidades constructivas, económicas, estética buscada y tiempos de ejecución.
Edificio de 6 viviendas y áticos en c/ Antonio de Madrid
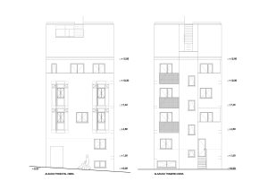
Edificio de 6 viviendas y áticos habitables en seis plantas. Solar de amplio fondo y ancho reducido que condiciona el diseño del mismo.
Proyecto de edificio de 12 viviendas, garaje, trasteros y áticos en Almorox
Edificio de 12 viviendas, garaje común y trasteros en sótano y áticos no habitables de 1430 m2 construidos en cinco plantas. Solar de amplio fondo situado en el Casco Antiguo del municipio.
Edificio de 6 viviendas y garaje en Villa del Prado
Edificio de 6 viviendas y garaje común de 850 m2 construidos en cuatro plantas. Solar en Casco Antiguo del municipio de forma alargada e irregular con amplia fachada exterior construida con fachadas de ladrillo visto y ciertos retoques decorativos de estética rústica.
Edificio de 6 viviendas y local en Valdemorillo
Edificio de 6 viviendas y local comercial de 300 m2 construidos en cuatro plantas. Solar en Casco Antiguo del municipio límite de manzana rodeado por tres de sus lados por calle con pendiente pronunciada, lo que obligó a escalonar el edificio. Planta bajo cubierta vividera con cubierta de pizarra.
Proyecto de edificio de 6 viviendas, 2 locales y garaje en Villa del Prado
Edificio de 4 viviendas, 2 apartamentos, 2 locales y garaje común de 740 m2 construidos en cuatro plantas en solar rectangular sito en el ámbito de protección de la Iglesia Parroquial lo que obligó a la utilización de materiales de estética rústica. Diseño del edificio condicionado por el desnivel existente de las dos calles entre las que se sitúa, motivo por el que se proyecta la planta parcial en sótano para la ubicación del garaje común.
Edificio de 2 viviendas y garajes en Casillas
Edificio de 2 viviendas, una por planta, y garajes independientes de 500 m2 construidos en tres plantas. Solar con pronunciado desnivel hacia el lindero posterior, motivo por el que los garajes están semienterrados. Amplias terrazas en la fachada posterior de cada vivienda para el disfrute de las vistas naturales.
Edificio de 5 viviendas en Villa del Prado
Edificio de 3 viviendas y 2 apartamentos de 280 m2 construidos en tres plantas en solar rectangular sito en el ámbito de protección de la Iglesia Parroquial lo que obligó a la utilización de materiales de estética rústica.
Edificio de 4 viviendas en Navalagamellaç
Edificio de 4 viviendas de 340 m2 construidos en dos plantas. Solar en Casco Antiguo del municipio de forma alargada e irregular con amplia fachada exterior construida con fachadas de ladrillo visto.
OTROS PROYECTOS
Proyecto de edificio de 5 viviendas y garaje en Villa del Prado
Proyecto de edificio de 4 viviendas, 2 estudios y local en Valdemorillo
Dos edificios de 6 y 3 viviendas en Robledo de Chavela
Edificio de 6 viviendas en Robledo de Chavela (Madrid)
Edificio de 6 viviendas en Robledo de Chavela (Madrid)
Edificio de 2 viviendas con garaje en Villa del Prado
Vivienda colectiva.docx
Como arquitectos, fusionamos la creatividad arquitectónica con las necesidades cambiantes de la sociedad.
Estas estructuras no solo son lugares para vivir, sino también cimientos para la construcción de comunidades sólidas.
Nuestra misión es crear espacios que no sólo acojan a comunidades, sino que las conecten, inspiren y ayuden a prosperar.
- El diseño de viviendas colectivas debe fomentar la interacción social. Espacios comunes como áreas de descanso, jardines compartidos y salas de reuniones pueden promover la convivencia y fortalecer los lazos entre los residentes.
- Las viviendas colectivas a menudo alojan personas de diversos orígenes y edades. El diseño debe ser inclusivo y adaptable para satisfacer las necesidades de todos, desde jóvenes profesionales hasta familias y personas mayores.
- Maximizar el espacio es muy importante en este tipo de viviendas. El diseño inteligente puede ofrecer comodidades modernas sin desperdiciar recursos.
- Las viviendas colectivas pueden liderar en términos de sostenibilidad. Desde sistemas de energía renovable hasta la gestión eficiente del agua y los materiales ecológicos, el diseño puede marcar la diferencia en la huella ambiental.
