Otros usos
Edificio para obrador de pan en Villa del Prado
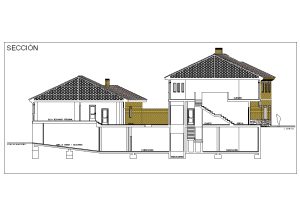
Edificio para obrador de pan en solar irregular sito en el ámbito de protección que obligó a la utilización de materiales de estética rústica. Diseño del edificio condicionado por la forma del solar y el desnivel existente de las dos calles entre las que se sitúa, motivo por el que se proyecta la planta parcial en sótano para la ubicación del obrador.
Proyectos de naves industriales
Proyectos de demolición de viviendas, naves,…
Proyectos de piscinas unifamiliares
Concursos
Biblioteca Municipal y Centro de Nuevas Tecnologías de Villa del Prado
Adjudicada en colaboración la redacción del proyecto técnico y la dirección de obra en concurso organizado por el Excmo. Ayuntamiento de Villa del Prado.
Pabellón Polideportivo Municipal de Aldea del Fresno (Madrid)
Adjudicada en colaboración la redacción del proyecto técnico en concurso organizado por el Excmo. Ayuntamiento de Aldea del Fresno.
